永豐烘焙坊

坪數

14坪

格局

店面

類型

老屋翻新

風格

日式現代

這是一個很特別的設計案,它不僅關乎設計本身,更是一份傳承與友誼的體現。我們很開心能接下這間經營了 50幾年的老屋翻新案。

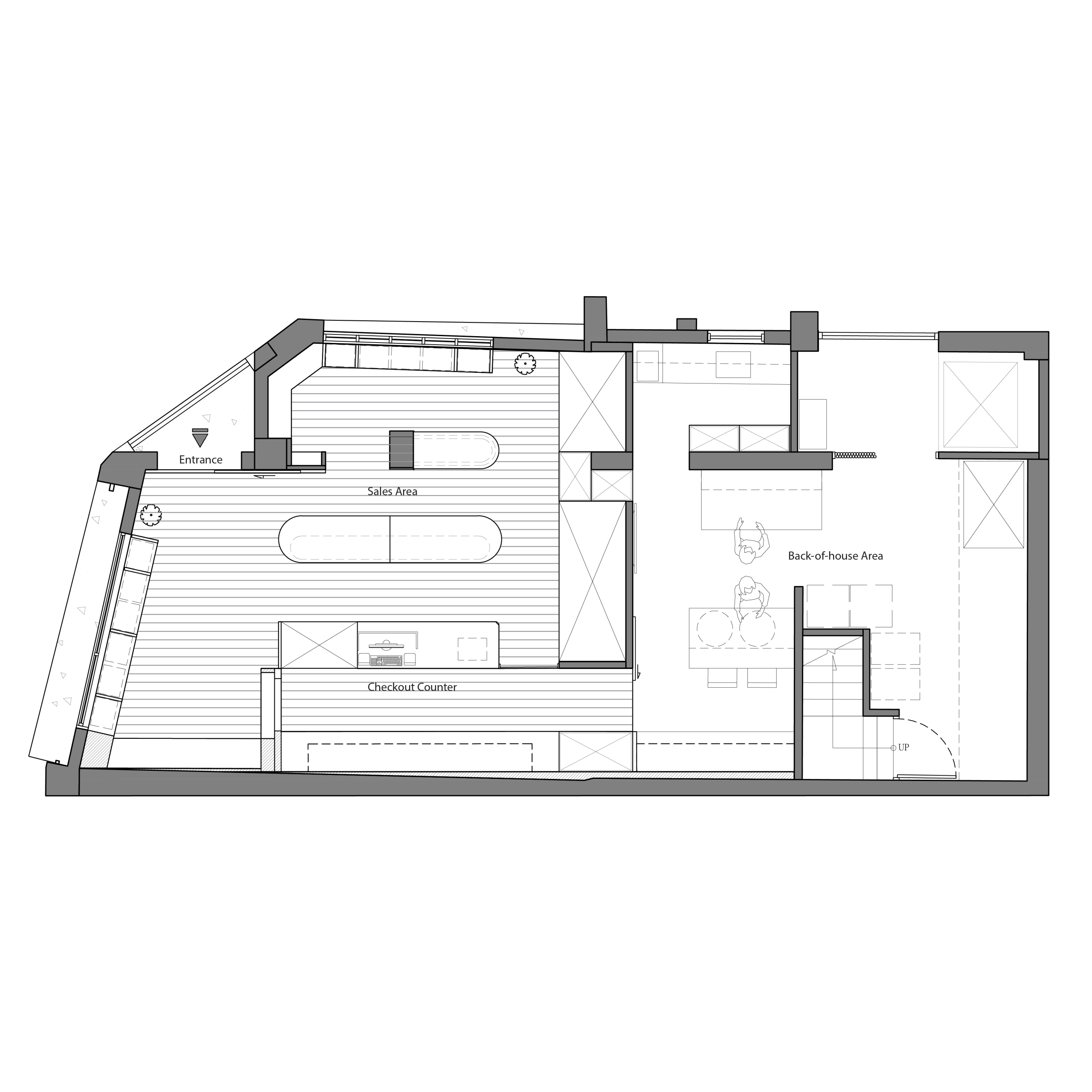
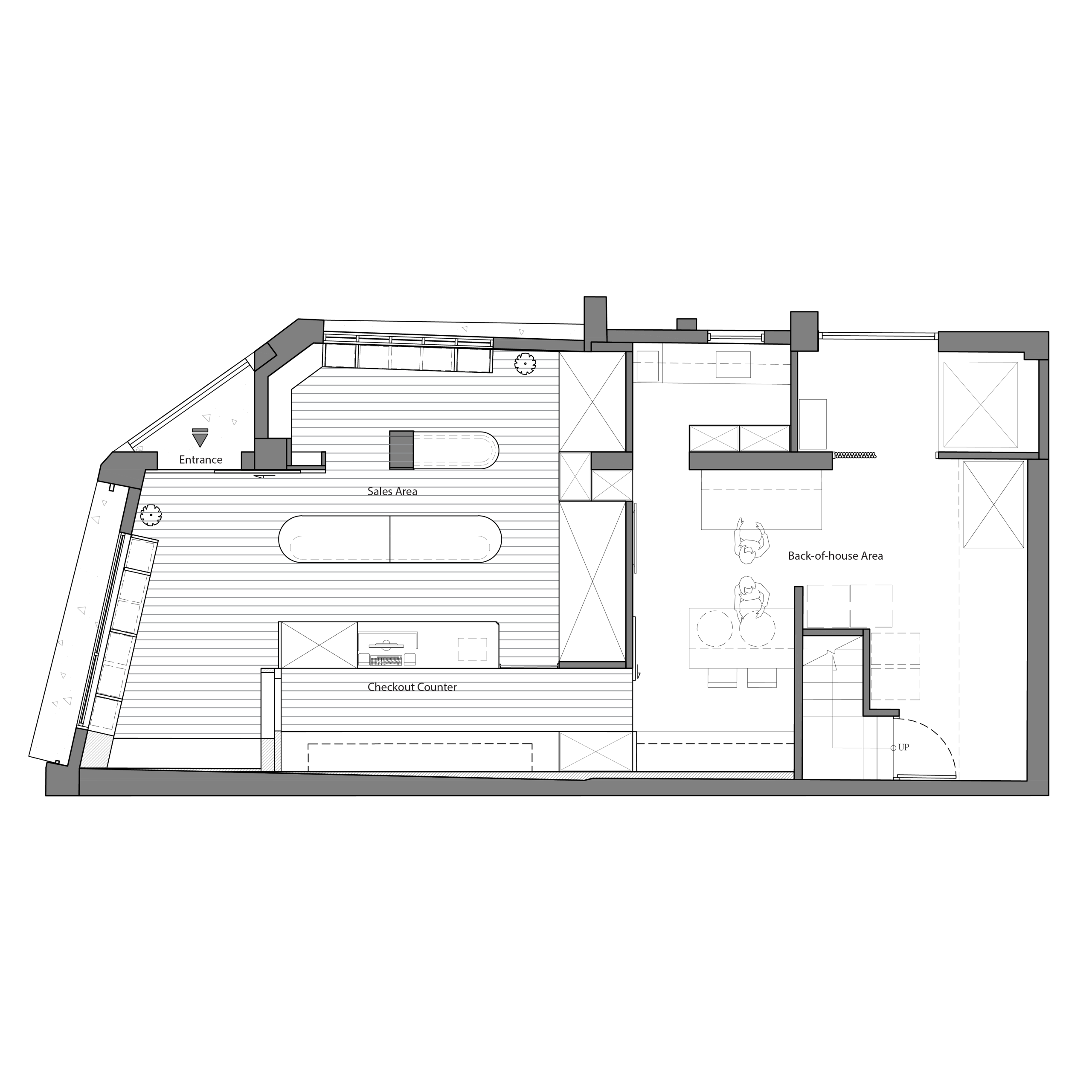
設計的首要挑戰,是如何在舊的基地上,注入現代烘焙坊的質感與舒適。我們決定從外觀做減法:告別老屋的繁複雜亂,選擇最耐看的米白色調作為基底。利用溫潤的圓弧拱門設計來柔化線條,創造出一個親切且具有邀請感的門面。走進室內,空間延續了溫暖的基調,大量採用淺色木紋、柔和灰調與編織紋理,營造出自然、且無壓力的氛圍。

而店內的核心,是中央這座流線型長陳列檯,設計成高低錯落的兩層,目的是讓選購動線變得更順暢、更有趣。溫暖的木質檯面,搭配上方線條簡潔的木質吊燈柔和照明,讓每一次選購都像是在欣賞一件件精心製作的烘焙品。

在整個設計過程中,我們始終專注於平衡「老店的人情味」、「老屋的限制」以及「現代烘焙的專業需求」。這個案子,因為與老朋友業主之間的深厚信任,以及專業施工團隊的協助,才得以順利完成。我們很高興能為這份在地情感找到一個美麗的載體,讓老店能繼續用嶄新的面貌,迎接每一個早晨。

10分鐘AI速測
返回頂端