玄墨序語

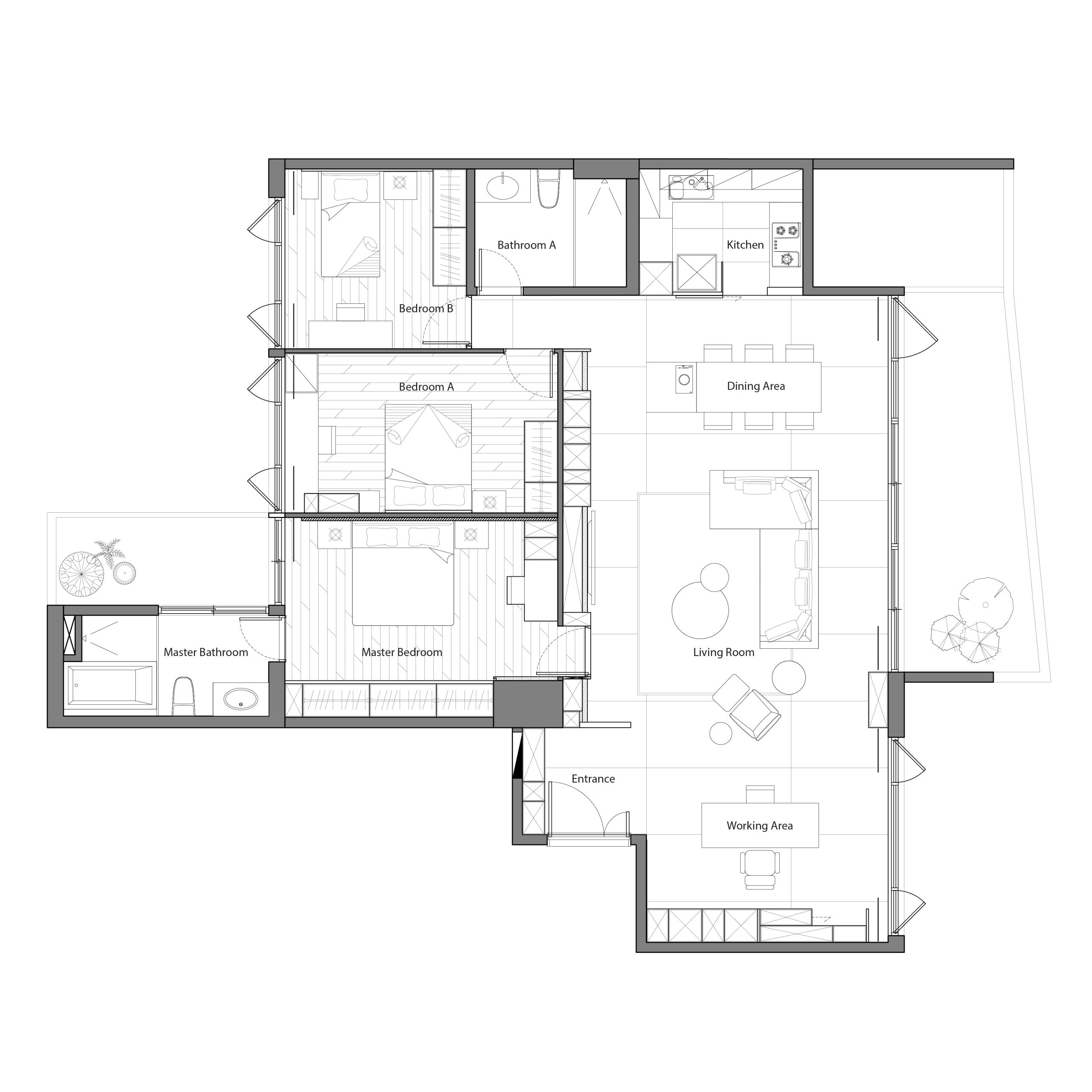
坪數

40坪

格局

3房2廳

類型

新成屋

風格

現代

將智能科技的流暢與高雅品味的細膩並軌。以開放式佈局優雅地解構了客廳與書房的界限,創造出一個連貫而富有生命力的公領域軸線。

空間的層次,仰賴於深色線條的內斂勾勒,賦予空間景深如畫布般的精緻。書房區被巧妙地昇華為公領域的藝術端景,深色書桌與藏光展示櫃的結合,使收納裝置成為承載主人生活軌跡的藝術裝置。

材質的選擇,是品味的極致展現:石材的沉穩基調、鍍鈦的冷冽光澤與木皮的溫潤脈絡相互交織。借用光的律動,為異材質賦予靈魂。

在私領域,則以低飽和度的色彩哲學,提供一處能安頓心緒的靜謐港灣。這座為都市精英量身打造的邸宅,處處皆是優雅的生活儀式,尋得身心靈的最終歸屬。

10分鐘AI速測
返回頂端