跳至主要內容
關於我們
作品介紹
服務與收費
媒體報導與獎項
聯絡我們
Main Menu
關於我們
作品介紹
服務與收費
媒體報導與獎項
聯絡我們
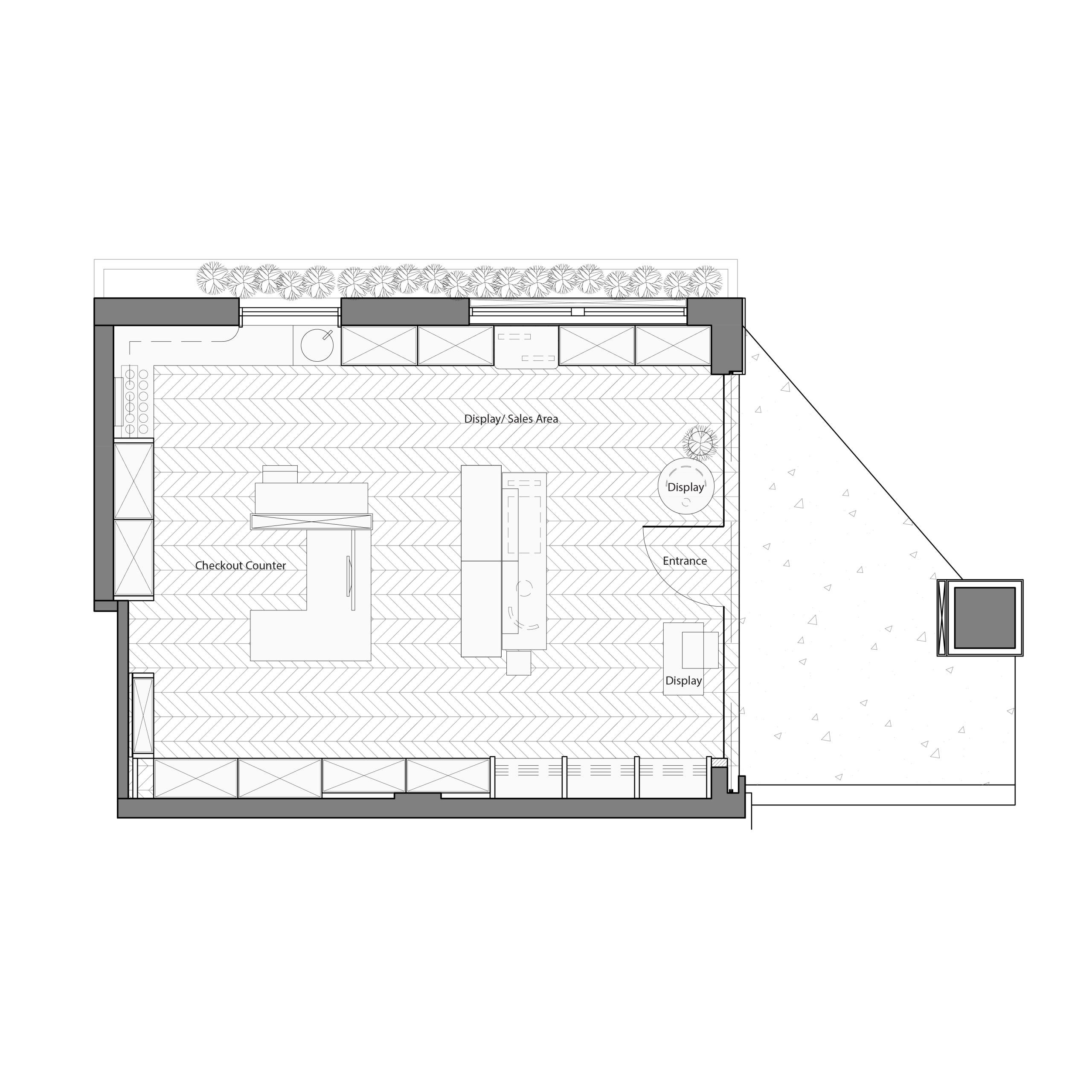
香草集-台大店
坪數
19坪
格局
店面
類型
老屋翻新
風格
Previous
香草集-高雄巨蛋店
Next
香草集-高雄文化店
10分鐘AI速測
返回頂端